【作者】瑞兒 【來源】金艾陶【發布日期】2016/9/9
小區:佛山龍光·水悅龍灣
戶型: 二期12-18座A戶型
設計風格:簡歐風格
應用瓷磚品牌:金艾陶瓷磚
本案設計理念: 本單元的設計打破純古典歐式風設計觀念,將古典的皇家裝飾元素融入現代風格設計中,使整個空間高貴不是典雅 。很是適合喜歡歐式風格,但又覺得歐式太過奢華古典的年輕人,可在歐式風裝修中添加些許現代裝飾,復雜不浮夸,裝修出別樣的生活韻味。

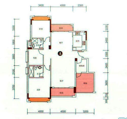
佛山龍光·水悅龍灣二期12-18座A戶型圖

陶瓷一線品牌金艾陶瓷磚KYS8061、KYP8069H效果圖

陶瓷一線品牌金艾陶瓷磚KYS8061、KYP8069H效果圖

陶瓷一線品牌金艾陶瓷磚KYS8061效果圖

陶瓷一線品牌金艾陶瓷磚KYS8061效果圖

陶瓷一線品牌金艾陶瓷磚KYS8061效果圖

陶瓷一線品牌金艾陶瓷磚KYS8061效果圖