【作者】 【來源】【發布日期】2016/7/2
小區:徐州開元翡翠灣
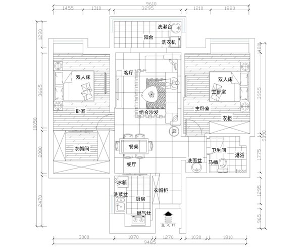
戶型:D戶型
設計風格:簡約鄉村風格
應用瓷磚品牌:金艾陶瓷磚
本案設計理念: 簡約鄉村風格摒棄了繁瑣和奢華,并將不同風格中的優秀元素匯集融合,以舒適機能為導向,強調“回歸自然”,使這種風格變得更加輕松、舒適。

徐州開元翡翠灣D戶型圖

本餐廳空間運用了大氣而簡單的家具來顯示出鄉村風格的美好。簡單而線條簡明的原木色餐桌椅配套無不帶著濃濃的自然、舒適元素,鏤空的屏風又帶著時尚的味道。

淡淡的燈光照射著整個空間,白色的茶幾擺放著清新的果盤,藍色格子的淡然優雅,電視正在熱播的歐洲杯賽事,此刻,只想跟您一起沉迷于此。

白色的櫥柜,讓很有田園鄉村風的廚房看起來很整潔明亮!愛回家,深愛著那個為愛洗手作羹湯的TA!

整個空間設計溫馨而舒適。小清新的碎花圖案搭配珍珠白的床,散落的燈光更增添了寧靜雅致的氣氛,體現鄉村風情。