【作者】瑞兒 【來源】金艾陶【發布日期】2016/6/22
小區:徐州開元翡翠灣
戶型:G戶型
設計風格:新中式風格
應用瓷磚品牌:金艾陶瓷磚
本案設計理念:新中式風格不是純碎的文化元素堆砌,而是通過對傳統文化的認識,將現代元素和傳統元素結合在一起,以現代人的審美需求來打造富有傳統韻味的事物,表達對清雅含蓄、端莊豐華的東方式精神境界的追求。

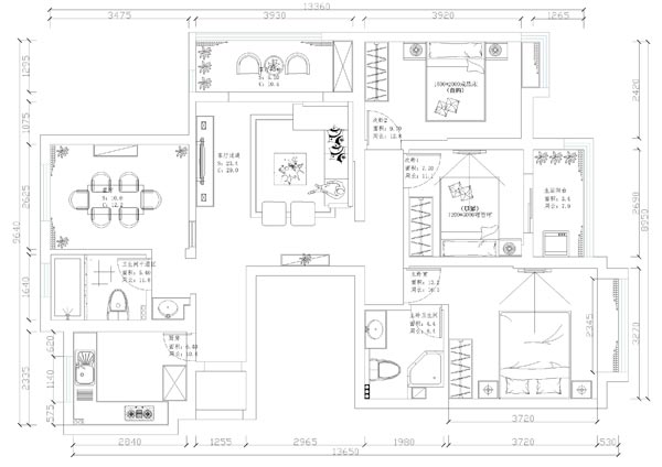
徐州開元翡翠灣G戶型圖

整體布局上以淺色系為主,在家具與配飾的精心選配上加入了硬朗及中性元素,結合金剛釉Ⅱ代瓷磚KJP的玉石紋理的柔和,讓居室看上去清爽舒適,卻又不失溫馨的氛圍。電視柜和茶幾的顏色與門顏色相呼應,提亮了整個客廳的亮度,同時把復古而慵懶的感覺打造出來。

餐廳以簡潔為主導,餐桌椅顏色差異的搭配,與地面金剛釉Ⅱ代瓷磚KJP1803的柔和及大理石瓷磚KYX8110的剛硬結合,協調而富有層次,筒燈散發光芒,增加了視覺的通透感,使不大的餐廳沉穩而不泛柔美。

小小的空間,卻蘊含著大大的智慧!廚房裝修的好壞直接影響廚師的心情,心情不好,飯菜的味道也會跟著變差了哦!這款金艾陶瓷磚噴墨瓷片充滿活力的橙色讓整個空間都活力十足,看著都是心情好好!在這樣的廚房里做飯,瞬間化身男神、女神!

金艾陶瓷磚這款噴墨瓷片沉穩的灰色調,讓人瞬間就將浮躁的心緒洗滌!簡單卻不單調,讓你盡享你的獨屬凈化空間!

整體格局設計簡單卻不失格調。筒燈散發著淡淡的光暈,把金剛釉Ⅱ代瓷磚KJP1803溫馨,KYX8110的沉穩演繹的更加的通透徹底,墻面沒有太多的裝飾,簡單的一副字畫,就讓整個空間清雅含蓄,清新舒適。